Eigentlich ziemliches Glück: Die heftig frostigen Tage waren rund um den Jahreswechsel - bestes Timing: während der Handwerkerferien. Nach Dreikönig dann wieder immer wieder Sonne und kaum mehr Minusgrade: Am Rohbau konnte es gleich wieder kräftig los- und weitergehen. Nach knapp zwei Wochen 2026 ist schon wieder echt viel zu sehen:
Die meisten Wände von Haus Mitte und Haus West sind fertig - außer denjenigen, die keine statische Funktion haben und deshalb später als Trockenbauwände errichtet werden (bspw. innerhalb der Arztpraxis).
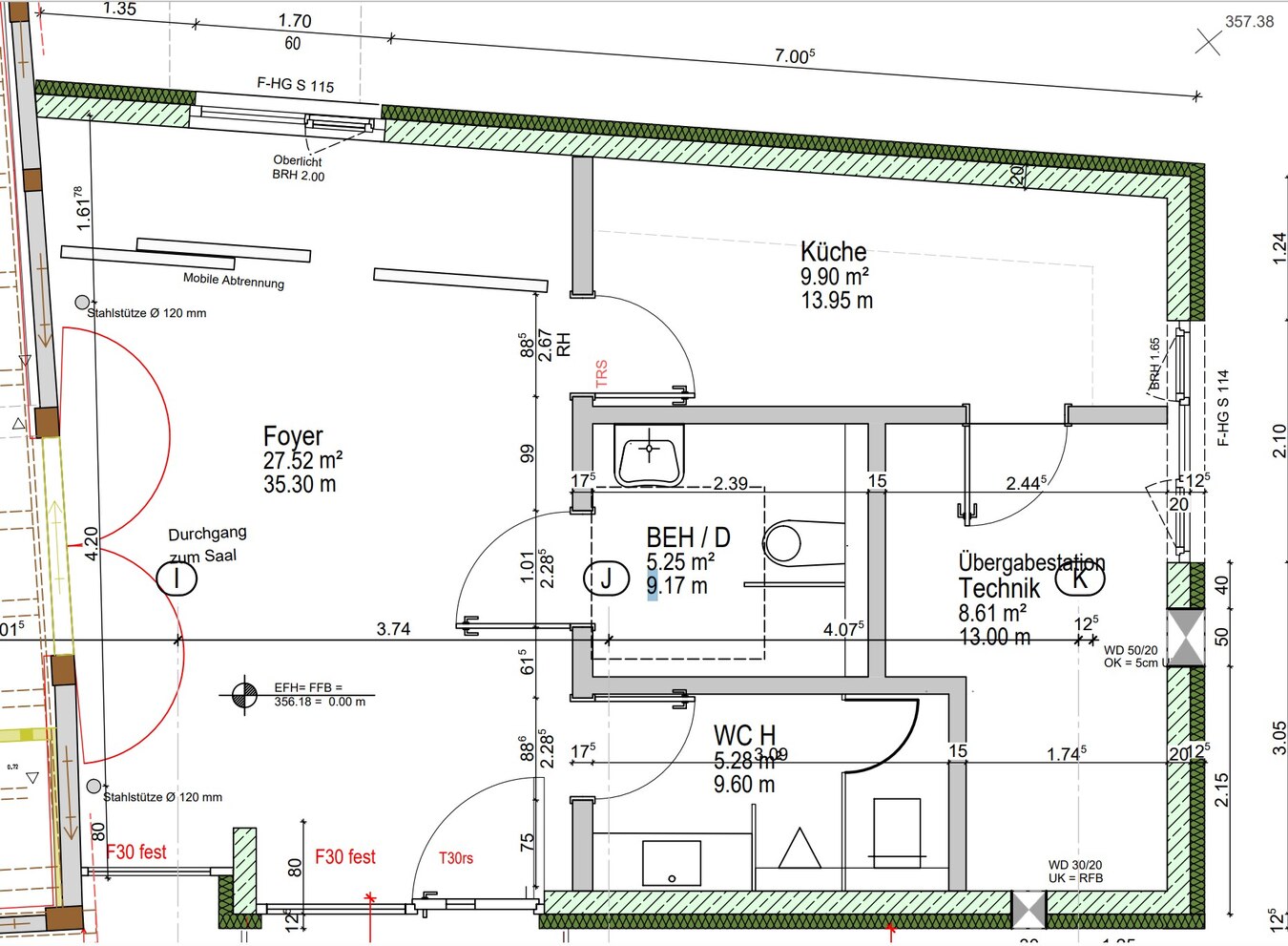
Findet Ihr Euch in diesem Labyrinth inzwischen allein zurecht :-)?
Auch im Scheunen-Anbau ging es nun wieder weiter - ebenfalls mit den (Außen-)Wänden.
hangseitiger Anstoß des Neubau-Anbaus an die Scheune
Blick vom Scheunen-Dachgeschoss in den Anbau, der noch keine Innenwände hat: Links-oben um die Ecke wird die kleine Gastro-Küchenzeile gebaut, vorn mitte und rechts die Besucher-WCs. Der schmale waagrechte geschalte Fensterausschnitt wird von der Ansicht von Osten verständlicher:

hier der dazugehörige Grundriss, 90 Grad im Uhrzeigersinn gedreht: links die Scheunenwand, oben der Hang, das schmale längliche Fenster hier im Plan ganz rechts
Ansicht von Osten. Mit dem eingeschossigen Scheunen-Anbau. Und dem kurzen Steg von der Anbau-Dachterrasse zur Pflege-WG. Außerdem mit dem schmalen liegenden Fensterausschnitt, der gerade geschalt wird